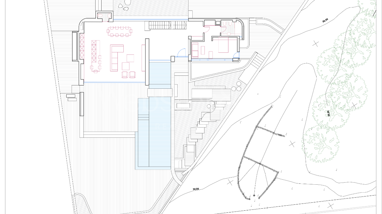
Villa Skyline - Grand Property Overlooking Mijas
Villa Skyline is an exceptional hilltop residence offering breathtaking panoramic views of the Mediterranean. This southwest-facing home captures sunlight all day and delivers a rare...
Mijas- 7 Beds
- 6 Baths
- 581 m²Built
- 1,420 m²Plot































































































































