Rare investment opportunity in Nueva Andalucía
- 3,471 m² Plot
In the heart of Marbella’s prestigious Nueva Andalucía, a rare and exceptional opportunity awaits—two adjacent plots of land, both boasting fully approved licenses and architectural projects to build luxury villas. Combined, these plots span an impressive 3,471 square metres, offering the perfect foundation for a standout development or a grand private estate.
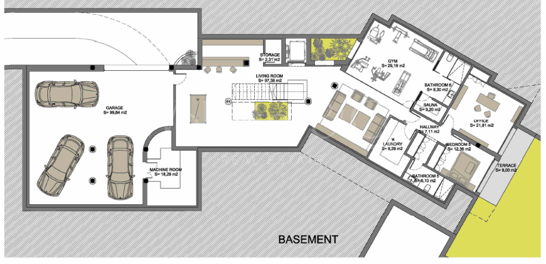
The first plot measures 1,998 m², while the second, immediately adjacent, offers 1,473 m². Each comes with a separate license and bespoke villa project, meaning construction can begin immediately—eliminating the usual delays and complexities of planning approval. This ready-to-go status, in such a sought-after location, makes this offering especially valuable.
Set in an elevated and privileged position, the plots enjoy breathtaking panoramic views of the coast and the Mediterranean Sea, creating the ideal backdrop for a luxury lifestyle. Whether for private enjoyment or as a high-return investment, the potential is unmatched.
Surrounded by all essential amenities—international schools, upscale shopping, gourmet dining—and just minutes from several world-class golf courses, the location combines peaceful exclusivity with unrivaled convenience.
Opportunities of this kind in Nueva Andalucía are exceedingly rare. With its sweeping views, full licensing in place, and prestigious setting, this is a prime investment in Marbella’s golden triangle—a chance to bring an exceptional vision to life in one of the most desirable enclaves on the Costa del Sol.
Overview
Details
Measurements
- Plot m2
- 3,471
Features
- Orientation
- S
Contact about this property
